四万十市中村羽生小路|中古物件
- お気に入りに登録する
- この物件の
- 資料請求
- 来場予約
コンセプト
Concept
街ナカに建つ、3階建ての二世帯住居。
販売現地 2026年4月
![]() |
![]() |
・暮らしやすさと、
家族のつながりを両立。
四万十市役所まで徒歩3分、
ローソン中村大橋通2丁目店まで徒歩4分、
フジ中村店まで徒歩10分。
車がなくても生活しやすい、便利な街ナカの立地です。
四万十市立中村小学校・中学校までも徒歩13~15分と
お子さまの通学にも安心。
毎日の暮らしに必要な施設が身近にそろい、
家族みんなが快適に過ごすことができます。
部屋数が多く、二世帯やご家族の人数が多いご家庭でも
それぞれのプライベート空間をしっかり確保。
玄関は共有のため、ほどよい距離感を保ちながらも
いつでも家族の気配を感じられるおうちです。
※内見をご希望の方は事前にご連絡ください。
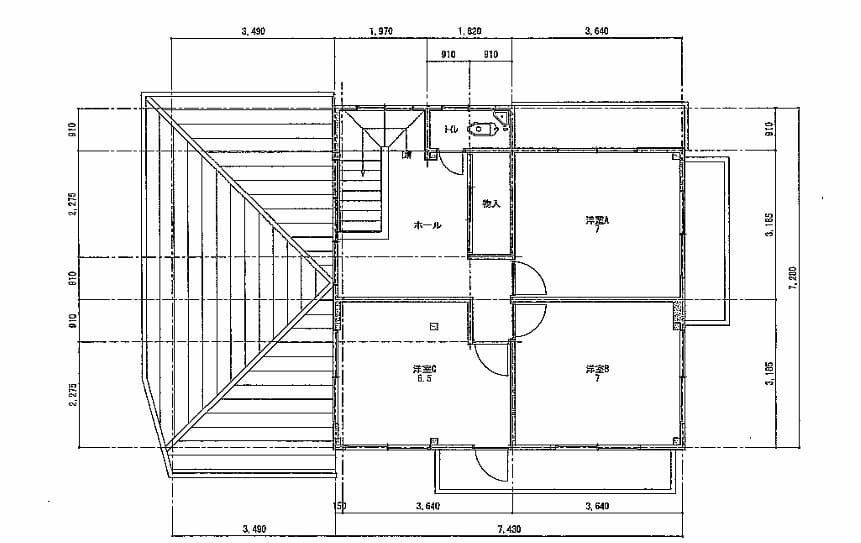
・間取り図
![]() |
![]() |
![]() |
| 1階 | 2階 | 3階 |
※掲載している図面は建築当時の図面をもとに作成しております。
一部設備(キッチン等)のサイズや詳細につきましては
現況を確認できておりませんので
記載がない状態となっております。
・マップ
| ■ 四万十市立中村小学校…………850m(徒歩12分) ■ 愛育園……………………………1.1㎞(徒歩15分) ■ 四万十市役所……………………200m(徒歩3分) ■ フジ中村店………………………750m(徒歩10分) |
■ 四万十市立中村中学校…………1㎞(徒歩13分) |





